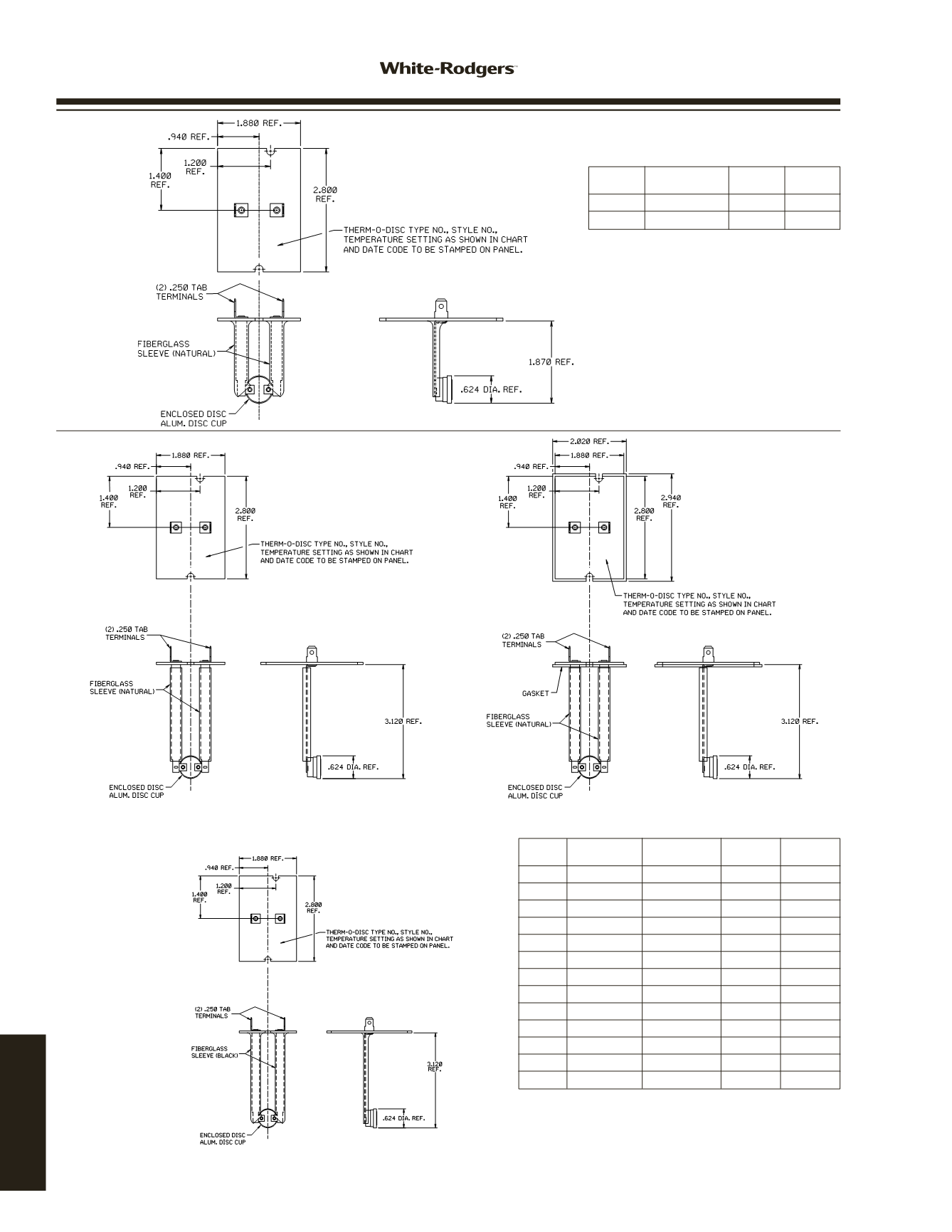
Model
Temp. Setting Open Close
Number
On Panel
Temp.
Temp.
3L09-1
L140-40 140°F±5° 100°F±8°
3L09-2
L170-40 170°F±5° 130°F±8°
Model
Temp. Setting Open Close
Number Construction On Panel
Temp.
Temp.
3L09-3
A
L140-30F 140°F±5° 110°F±8°
3L09-4
C
L150-20F 150°F±5° 130°F±8°
3L09-5
C
L160-20F 160°F±5° 140°F±8°
3L09-6
B
L170-40F 170°F±5° 130°F±8°
3L09-7
A
L175-30F 175°F±5° 145°F±8°
3L09-8
B
L180-40F 180°F±6° 140°F±9°
3L09-9
C
L190-20F 190°F±5° 170°F±8°
3L09-10
B
L200-40F 200°F±6° 160°F±9°
3L09-11
B
L210-40F 210°F±6° 170°F±9°
3L09-12
B
L220-40F 220°F±6° 180°F±9°
3L09-13
A
L240-30F 240°F±6° 210°F±10°
3L09-14
B
L250-40F 250°F±7° 210°F±11°
3L09-15
A
L260-30F 260°F±6° 230°F±10°
Figure 1
Figure 2
OUTLINE
DIAGRAMS
3L09
CONSTRUCTION “A”
CONSTRUCTION “B”
CONSTRUCTION “C”
www.white-rodgers.com194
TECHNICAL HELP




